6 maisons individuelles avec accès direct à la plage. Construction clé en main avec IVstroy — des fondations à la livraison.

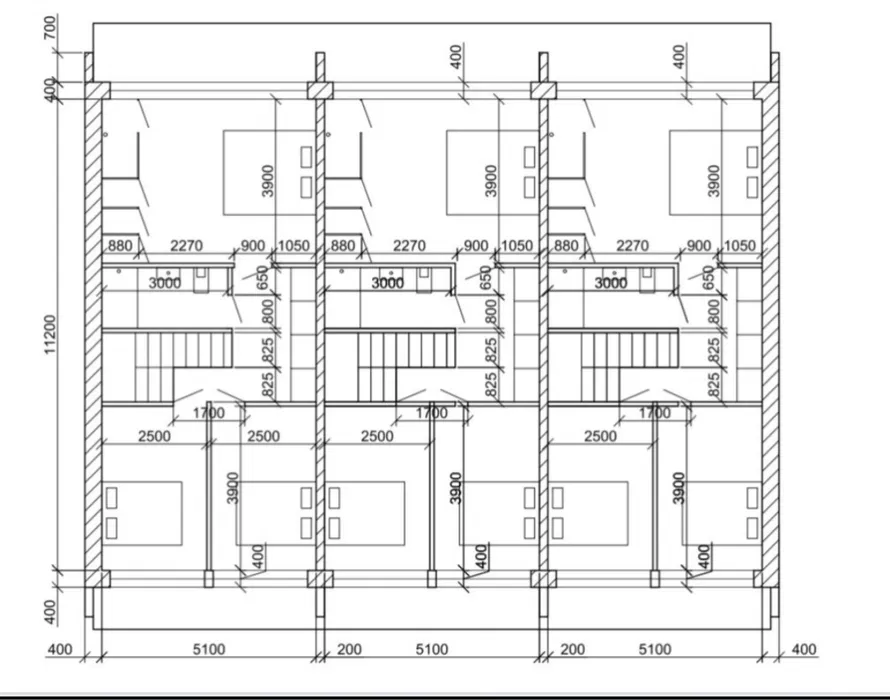
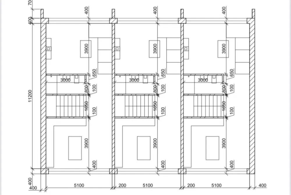
Chaque maison — plan miroir de 5,1 m de large et 11,2 m de profondeur. Deux niveaux habitables + toiture-terrasse exploitable.
Séjour, cuisine-salle à manger, WC, escalier. Baies vitrées panoramiques donnant sur la terrasse.
2 chambres, salle de bain, balcon. Accès à la terrasse-toit de 50 m².
Tout le processus a été enregistré par les caméras du chantier.
Coulage des fondations, livraison des blocs de béton cellulaire, grue sur site.
Structure monolithique avec dalles. Murs du premier niveau en bloc cellulaire. Coffrage du deuxième niveau.
Achèvement du gros œuvre, pose de la toiture, menuiseries. Début du bardage façade en travertin naturel.
Façade travertin, garde-corps bois sur balcons, toutes les réseaux raccordés. Prêt pour les finitions intérieures.
Ensemble construit en partenariat avec la société IVstroy.
Réponse sous 4 heures en jours ouvrés.
Décrivez votre projet — nous vous recontactons sous 4 heures et organisons une visite gratuite.
🔒 Vos données sont protégées. Pas de transmission à des tiers.
Nous avons bien reçu votre message.
Un conseiller vous contactera sous 4 heures.